Platformy dla osób niepełnosprawnych – bez szybu, z pełnym bezpieczeństwem UDT. Gabiga to doświadczony producent i montażysta platform osobowych działający na terenie całej Polski. Nasze platformy hydrauliczne (np. typ DHP‑0,3 t) cechują się kompaktową zabudową – nie wymagają szybu, podszybia ani osobnego pomieszczenia maszynowego. Dostarczane i instalowane w domach, instytucjach i obiektach użyteczności publicznej, zapewniają udźwig do 300 kg oraz zgodność z europejskimi normami CE. Dzięki temu użytkownicy zyskują swobodny, bezpieczny dostęp na różnych poziomach budynku.

Cechy urządzenia:
| Typ | DHP-0,3t |
|---|---|
| Maksymalny udźwig | 300 kg |
| Wysokość użytkowa | do 3000 mm |
| Parametry platformy podnoszącej: | standard 1400 mm x 1060 mm |

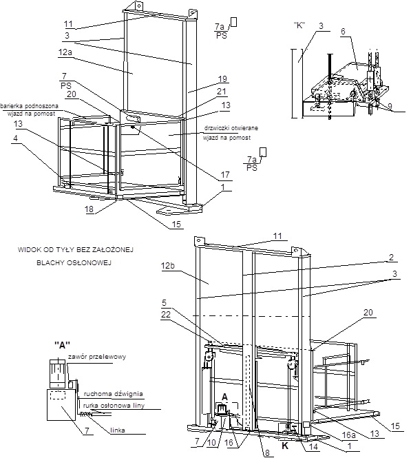
Platforma typu DHP zbudowana jest z :
Wózki podnoszące umieszczone są wewnątrz kolumn i przemieszczają się w nich góra – dół za pomocą kół jezdnych po bieżniach w kolumnach. Podnoszone i opuszczane są za pomocą mechanizmu hydrauliczno – linowego. Pomost transportowy podnoszony jest poprzez zespół 4 lin / dwie nośne i dwie bezpieczeństwa/. Sterowanie - podnoszenie i opuszczanie zespołu wraz z pomostem załączane jest z kasety sterowniczej PS lub z kaset sterowniczych zewnętrznych.
Zastosowane zabezpieczenia:
| Typ | DHP-0,3t |
|---|---|
| Maksymalny udźwig | 300 kg |
| Wysokość podnoszenia od poziomu „H” | 1700 mm |
| Wysokość Platformy „Hc” | 2700 mm |
| Długość pomostu transportowego „A” | 1400 mm |
| Szerokość pomostu transportowego „B” | 1060 mm |
| Szerokość całkowita Platformy „L” | 1270 mm |
| Wysokość podłogi pomostu transportowego od poziomu posadowienia "a" | 2700 mm |
| Wysokość Platformy „Hc” | 65 mm |
| Typ silnika | SFg 90L-4D-FT100 Jenofazowy |
| Moc silnika | 0,55 kW |
| obroty silnika | 1415 obr/min |
| napięcie zasilania | 220 V; 50Hz |
| napięcie sterowania | 24 V |
| typ pompy | zębata PZ-1,6 |
| Typ liny | Ø6 - 6 x 37 + SEL – sZ – n – g - 1960MPa |
| siłownik - nurnik | CN Ø 60 x 85we0 |
| Czujnik zbliżeniowy dno aktywne S1705-P1 | Certyfikat zgodności SEP CE/051/09 z dnia 18.08.2009 |
| Czujnik zbliżeniowy bramek S1705-N1 | Certyfikat zgodności SEP CE/051/09 z dnia 18.08.2009 |
| Czujnik zbliżeniowy bramki , Łączniki miniaturowe | Certyfikat zgodności SEP CE/051/09 z dnia 18.08.2009 |
| Czujnik liny nośnych | Czujniki zbliżeniowe lin, typ:PCID-4ZP |
| Pleksi /wypełnienie barierek | maksymalna temperatura pracy 80 ºC, twardość 175 MPa |
| Automatyczna blokada | Mechaniczny automatyczny bezpiecznik lin |
| Uwalnianie pasażera w przypadku zaniku prądu | 1 kpl / ręczne / |
| Poziom hałasu przy pracy urządzenia | 34 dB(A) |